En esta entrada vamos a describir la ejecución de una obra en la que fuimos contratados como Arquitecto Técnico Dirección de Ejecución Material de la Obra, así como Coordinadores de Seguridad y Salud.
La obra consiste en una vivienda unifamiliar de unos 650 m2 aproximadamente realizada en la localidad de Ciudalcampo – MADRID. A continuación vamos a poner un pase de fotografías de la ejecución de la misma, y posteriormente haremos una pequeña descripción y se verán algunos planos.
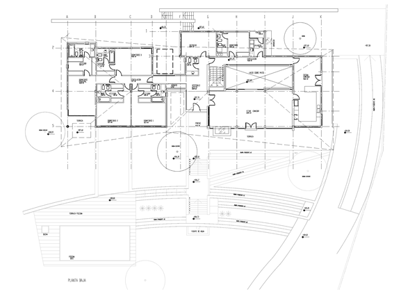
El programa de necesidades es el de una vivienda unifamiliar de 4 suites con sus baños privados, salón comedor, cocina comedor, servicios, aseo y despacho.
Se resuelve en planta baja, un volumen básicamente lineal orientado hacia el sur y aprovechando el desnivel existente, se ubica el sótano.
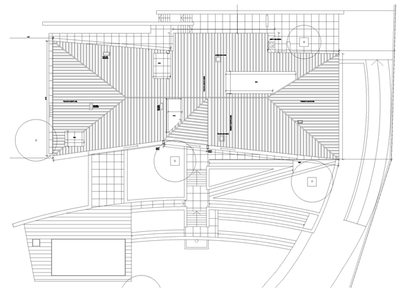
La tipología de vivienda responde a la de una vivienda aislada, con un volumen compacto de planta básicamente rectangular. La cubierta de tejas se resuelve a 4 aguas.
Las fachadas se han tratado adaptando la tradición constructiva a las necesidades técnicas y funcionales.
Se ha planteado una vivienda en planta baja con acceso peatonal central al cual se llega luego de un recorrido de rampas y escaleras, que salvan el desnivel existente.
La planta de sótano se destina a garaje, un cuarto de instalaciones y un baño.
La planta baja consta de: recepción, aseo, despacho, salón comedor, cocina comedor, lavadero, dormitorio de servicio con baño y 4 dormitorios con vestidor y baño privado.
Cimentación.
Se proyecta un sistema de cimentación por medio de zapatas aisladas y corridas bajo muro de sótano, arriostradas entre sí.
Estructura.
Se trata de configurar una estructura resistente de hormigón armado mediante pórticos formados por pilares de 25×25 cm y 25×40 en la zona perimetral y de 30×30 en la zona central, que reciben vigas planas de 30 cm de canto y ancho variable según cálculo. Debajo del primer nivel se ha creado un sótano mediante muros de hormigón armado de 25 cm de espesor, cimentados mediante zapatas corridas. La excavación de las zapatas se realizará hasta la cota aconsejada en el estudio geotécnico, para posteriormente rellenarla con hormigón ciclópeo hasta la cota necesaria para los distintos tipos de zapatas.
En cuanto a la cubierta, que se realizará a cuatro aguas, mediante tabiquillos palomeros en las zonas bajas y estructura metálica, según se indican en los distintos planos. (ver Anejo Estructuras)
Cerramiento.
Se proyecta un sistema de cerramiento constituido por los siguientes elementos:
Muros de hormigón armado de 25 cm de espesor con caras exteriores vistas de mampostería de piedra de granito meteorizado a una cara vista. Chapado de muros de 10 cm. de espesor aproximado, recibido con mortero de cemento.
Muros exteriores.
Cerramiento formado por fábrica de ladrillo manual cara vista salmón (Rústico La Mancha S.A.) de 23x11x5 cm. de 1/2 pie de espesor, enfoscado interiormente, con mortero de cemento y arena de río 1/6, cámara de aire de5 cm. y tabicón de ladrillo hueco doble, recibido con mortero de cemento y arena de río.
equipo aparejador - Arquitecto Técnico – Madridwww.EquipoAparejador.com



